Modular Draft Beer Pass Thru Tower | 10 Faucet Holes | 41" Long | S/S # 8

Modular Draft Beer Pass Thru Tower | 10 Faucet Holes | 41" Long | S/S # 8

$ 1,582.42 USD

Modular Draft Beer Pass Thru Tower | 10 Faucet Holes | 41" Long | S/S # 8

$ 1,582.42 USD

Modular Draft Beer Pass Thru Tower | 10 Faucet Holes | 41" Long | S/S # 8

$ 1,582.42 USD

SKU: 81024-41

Need it Faster than the lead time in Red? Add a rush charge in the cart

Description Rush Charge Shipping

10 Faucet Hole Modular Pass Thru Beer Tower

*Please allow up to 3-4 weeks for this product to ship*

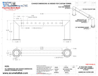
Our Modular Pass Through Towers come in 4" diameter X .060" wall tubing. These towers separate from the tube and pedestal. Thus, making the draft beer install much faster and simplistic. This Pass Through Towers comes in Stainless Steel in a #8 mirror polished finish. Pass-Through Towers come with Neoprene gaskets to aid in keeping the product cold.  The flanges are press formed from a single piece of material and have 4 countersunk holes for mounting.

  • A clean tubular style is perfect for displaying a draft beer variety
  • Made in the USA!
  • The exterior finish will provide years of durable service
  • Modular style, for installation ease

Modular Pass Thru Beer Tower Drawing (Spec Sheet)

We offer rush orders for products with 2 or 3 week lead times. If your lead time in green/red meets those requirements, please add the rush charge. The rush charge is 60% of the cost of each product. If you choose this option, the order will have a 7-working day in process lead time.

If your product has a 1-2 day lead time, this means your product is in stock or can be made quickly and will ship within 1-2 days. A rush order for 1-2 day products is not necessary. 

If the rush order does not appear in the cart, then the rush order option is not available online. We may still offer it for phone orders if you call us at 951-943-1495. One of the reasons for the rush order to be turned off is our work/order volume is too high or metal demands. 

Remember you must still choose the best shipping option for you. A rush charge does not mean the shipping will be expedited.

If you have any other questions, please contact us.

 

Free Ground Shipping on Orders over $100 (Taxes and Fees Not Included)

Free Ground Shipping on Orders over $100 or more (Taxes and Fees Not Included). This only applies to the continental United States. Free ground shipping in the cart will be applied by default if it is an option for your location.

Free ground shipping will be shipped via UPS Ground.

This will be labeled as UPS Ground and the price would be set to Free (Zero dollars).

Rinser Collection(s) are now included. Please give us time to make this transition correctly. Thank you. 

Family owned & Operated

Family owned and operated since 1959

FREE SHIPPING

Free Ground Shipping on Orders over $100**

Trust

We have earned the reputation to have the highest quality and service in the industry.

Made In the USA and Supported in America

All of our draft beer drip trays and draft beer towers are made in the USA!